Mieszkanie na sprzedaż w La Nucia za 499 000 € (LANU2627)

Luksusowy nowy projekt budowlany w La Nucia

499.000 €
Ref. LANU2627
La Nucia, Alicante Wyświetl mapę

Podstawowe funkcje

m<sup>2</sup> Grunt
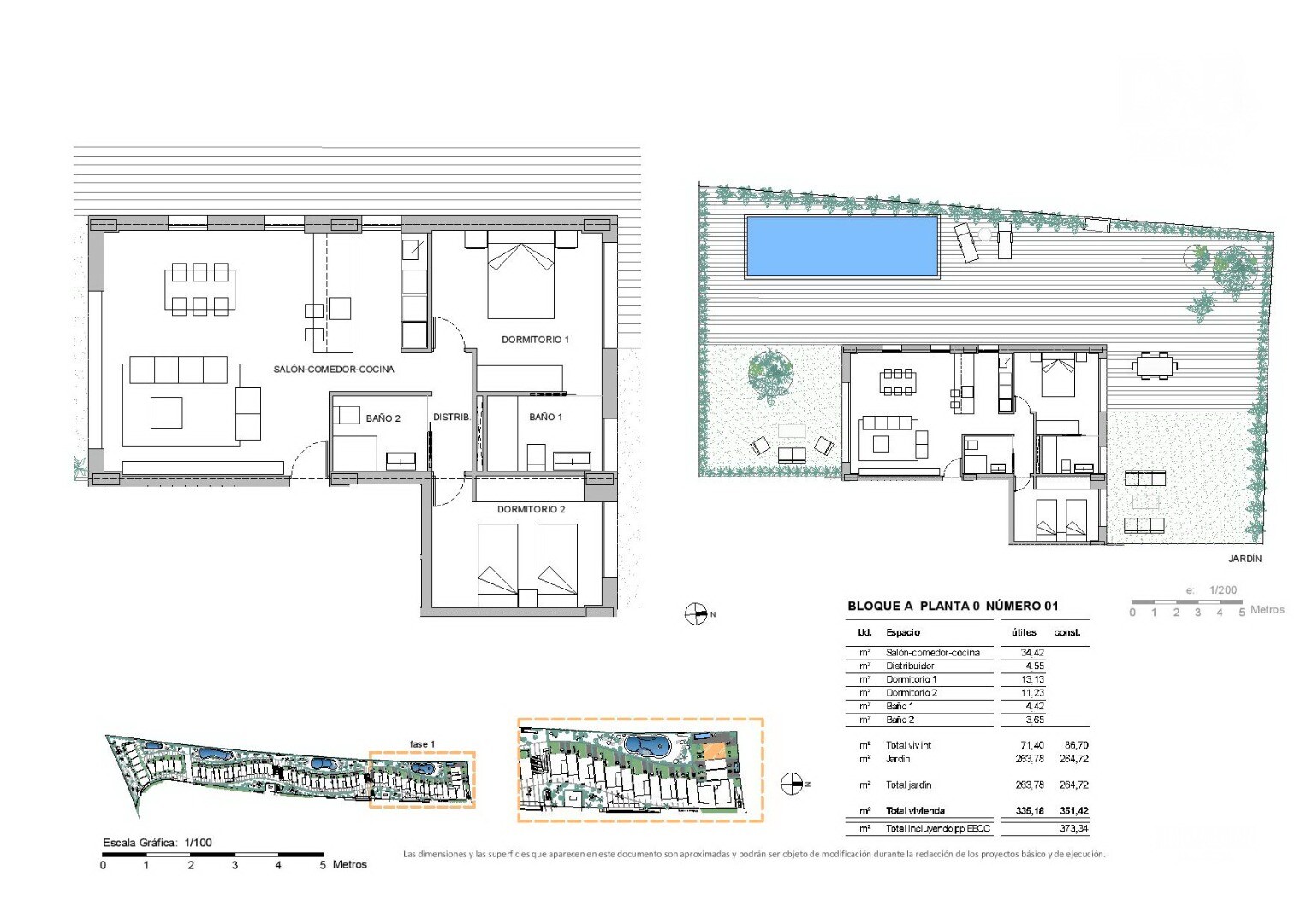
265 m2 Grunt
m<sup>2</sup> mieszkania
87 m2 mieszkania
Sypialnie
2 Sypialnie
Łazienki
2 Łazienki
Garaż / Parking
Garaż / Parking
Basen wspólnotowy
Ogród
Pralnia / Spiżarnia
Sprzęt AGD
Klimatyzacja
Szafy
Podwójne szyby

Opis

Chcesz uzyskać więcej informacji? Mniej informacji
Odkryj swój nowy dom, gdzie ekskluzywność i natura idealnie się ze sobą łączą. Położona w spokojnym krajobrazie La Nucía, ta wyjątkowa rezydencja oferuje harmonijną społeczność 64 apartamentów i penthouse'ów z 2-3 sypialniami, idealnych dla osób poszukujących luksusu i spokoju. Każdy apartament został starannie zaprojektowany, aby zapewnić maksymal...

Lokalizacja

La Nucia, Alicante
Czy jesteś zainteresowany tą nieruchomością i chciałbyś uzyskać więcej informacji?

Symulacja kredytu hipotecznego

Pozostała niesfinansowana cena
00,00 €
Przybliżone koszty:
00,00 €
Fundusze własne ogółem
00,00 €
Rata kredytu hipotecznego
€/mes
Chcesz uzyskać więcej informacji?
Jest 41 osób oglądających tę nieruchomość