Położona w ekskluzywnej i spokojnej enklawie mieszkalnej Alfaz del Pi, ta elegancka willa oferuje wyrafinowany śródziemnomorski styl życia, łącząc przestronne wnętrza, prywatność i ponadczasowy design.
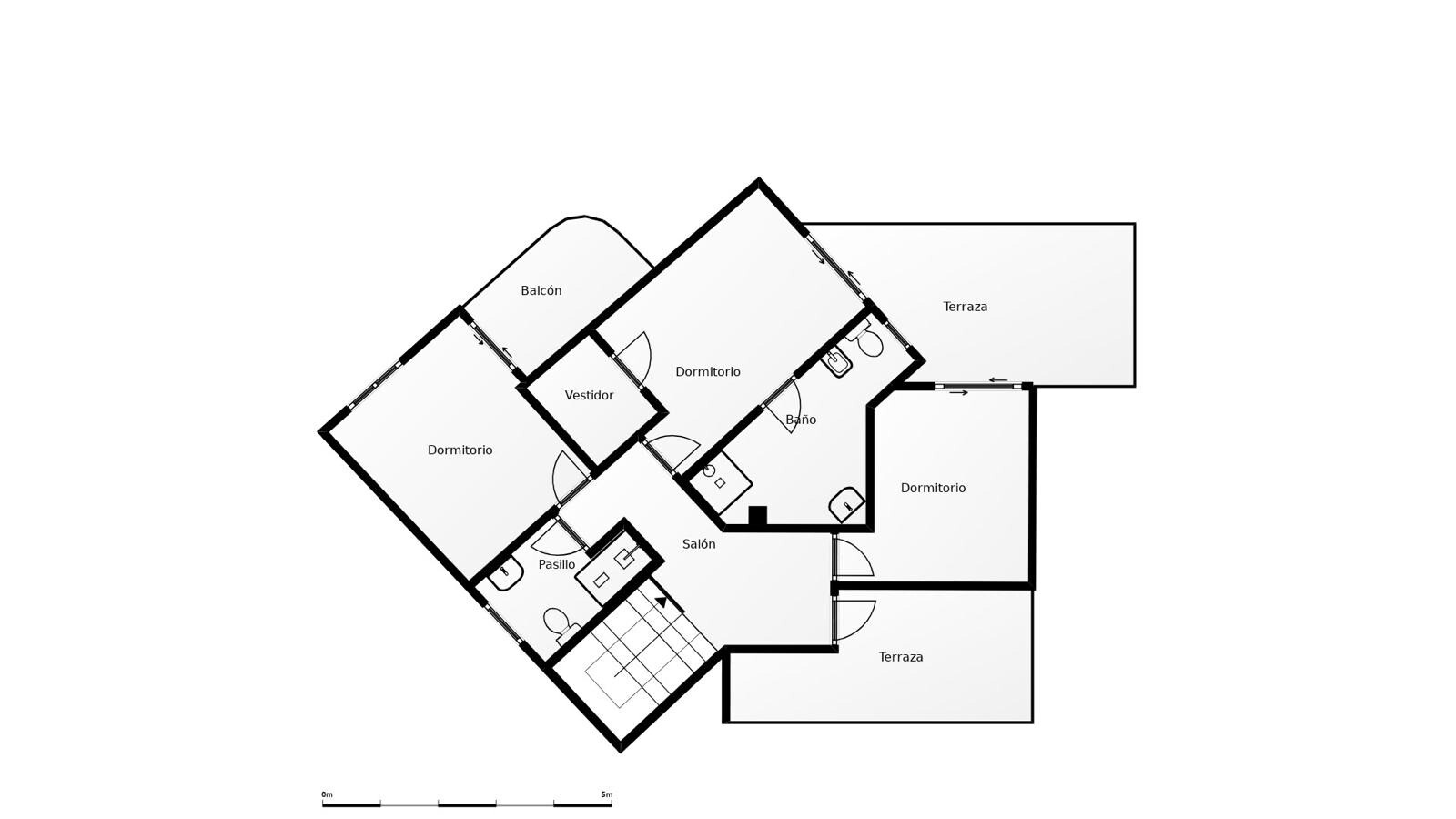
Rezydencja składa się z czterech przestronnych sypialni i trzech łazienek. Apartament główny to prywatna oaza spokoju z łazienką i garderobą zaproj...ektowaną na zamówienie. Sypialnia na parterze zapewnia wyjątkową wygodę, idealną dla gości lub rodzin wielopokoleniowych.
Przestronny salon z jadalnią jest skąpany w naturalnym świetle i harmonijnie otwiera się na w pełni wyposażoną, niezależną kuchnię, uzupełnioną o oddzielną pralnię. Układ wnętrza został starannie zaprojektowany, aby połączyć komfort, funkcjonalność i dyskretną elegancję.
Zajmując działkę o powierzchni 850 m², przestrzenie zewnętrzne są dostosowane do wyjątkowego stylu życia w śródziemnomorskim słońcu. Nieruchomość oferuje prywatny basen, w pełni wyposażoną kuchnię letnią, strefy rekreacyjne i przestronne tarasy z panoramicznymi widokami – idealne do spotkań towarzyskich lub relaksu na świeżym powietrzu.
Duży garaż, mieszczący co najmniej pięć samochodów, dodatkowo zwiększa wartość nieruchomości i stwarza możliwość przekształcenia jej w niezależny apartament gościnny lub kwaterę pracowniczą.
Do najważniejszych udogodnień należą:
Ogrzewanie olejowe
Klimatyzacja z funkcją chłodzenia i ogrzewania
Wysokiej jakości okna PCV z możliwością uchylenia i otwarcia
Ta elegancka willa, prezentowana w nienagannym stanie, idealnie nadaje się na główne miejsce zamieszkania lub ekskluzywny drugi dom na Costa Blanca, będąca atrakcją dla międzynarodowych nabywców poszukujących prywatności, przestrzeni i wyrafinowanego życia na wybrzeżu.