Willa na sprzedaż w Altea za 2 359 000 € (ALTE3636-2)

Luksusowa willa w budowie w Altei z widokiem na morze

2.359.000 €
Ref. ALTE3636-2
Altea, Alicante Wyświetl mapę

Podstawowe funkcje

m<sup>2</sup> Grunt
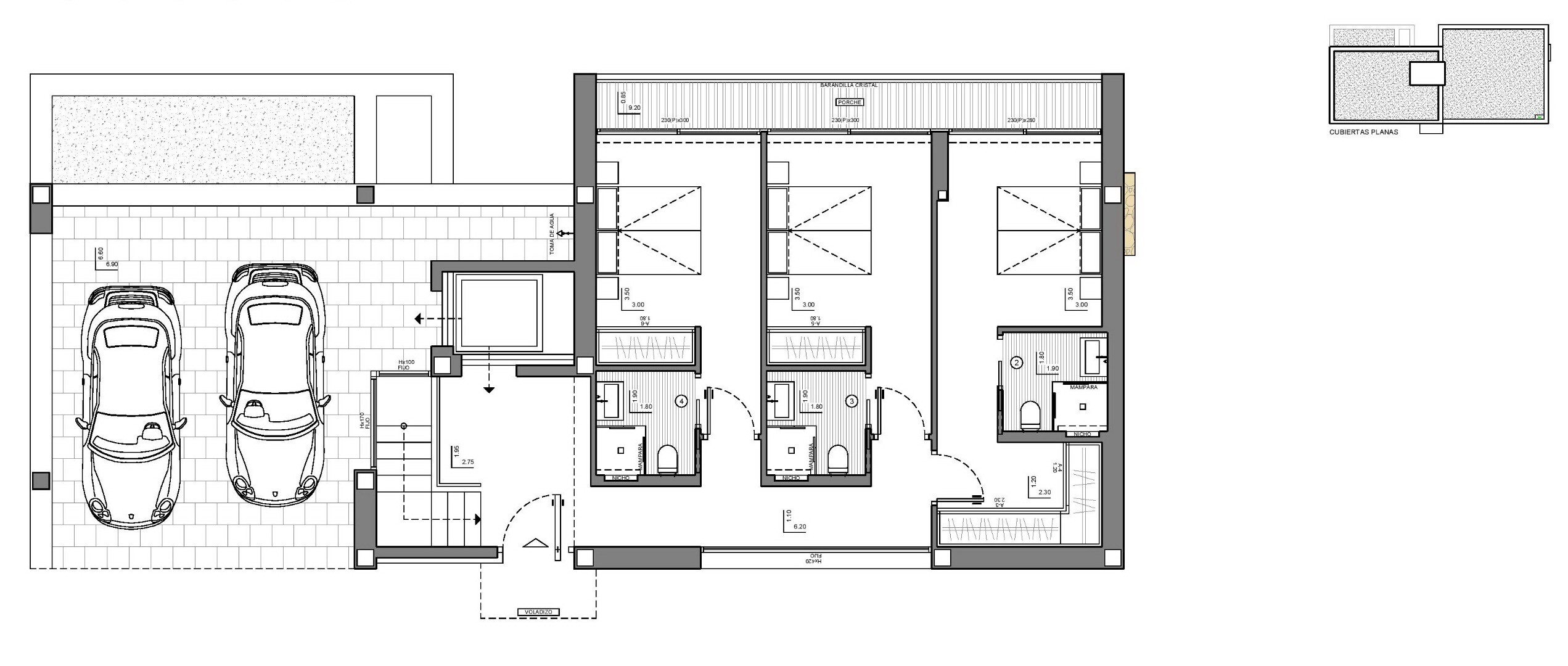
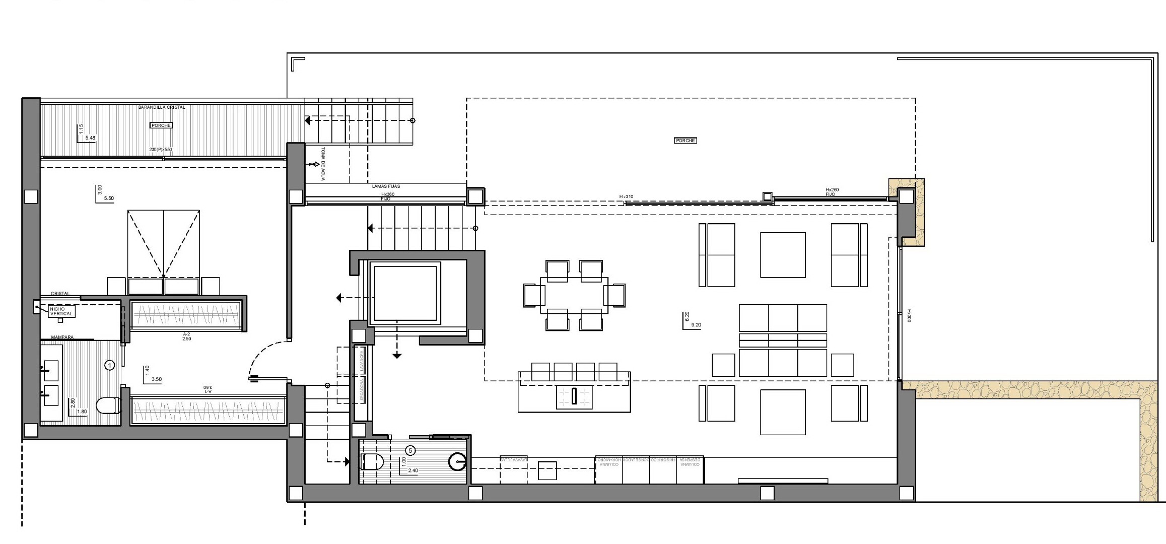
1006 m2 Grunt
m<sup>2</sup> mieszkania
249 m2 mieszkania
Sypialnie
4 Sypialnie
Łazienki
5 Łazienki
Odległość od morza
Plaża oddalona o 4 km
Garaż / Parking
Garaż / Parking
Tarasy
95 m² taras
Prywatny basen
Winda
Sprzęt AGD
Klimatyzacja
Ogrzewanie
Szafy
Podwójne szyby
Domotyka
Alarm
Grill
Ogrzewanie podłogowe

Opis

Chcesz uzyskać więcej informacji? Mniej informacji
Przedstawiamy Villa Alba, ekskluzywną, nowoczesną willę, położoną w osiedlu mieszkaniowym w Altei, na popularnym północnym wybrzeżu Costa Blanca.
Zaprojektowana z myślą o wymagających klientach, ceniących nowoczesną architekturę, prywatność i spektakularne widoki na Morze Śródziemne, ta elegancka nieruchomość oferuje idealną równowagę między komfor...

Lokalizacja

Altea, Alicante
Czy jesteś zainteresowany tą nieruchomością i chciałbyś uzyskać więcej informacji?

Symulacja kredytu hipotecznego

Pozostała niesfinansowana cena
00,00 €
Przybliżone koszty:
00,00 €
Fundusze własne ogółem
00,00 €
Rata kredytu hipotecznego
€/mes

Co ten obszar ma do zaoferowania?

Chcesz uzyskać więcej informacji?
Jest 13 osób oglądających tę nieruchomość