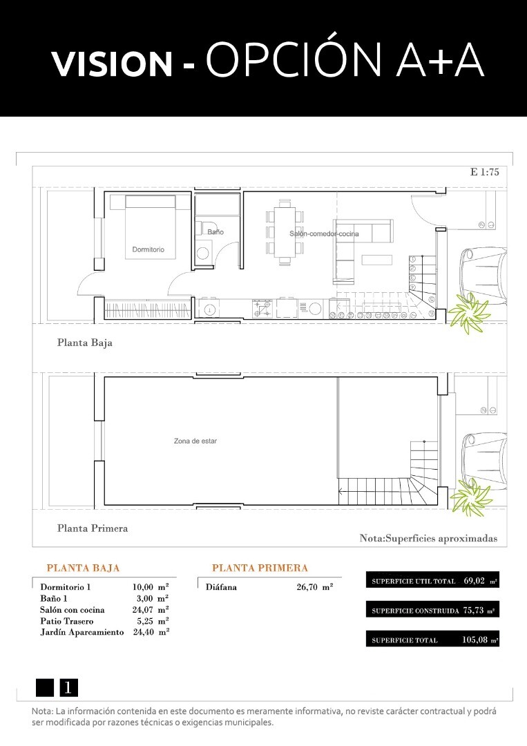
Dom szeregowy na sprzedaż w Gran Alacant za 280 000 € (AL04)

Bungalowy z 1, 2 lub 3 sypialniami i 1 lub 2 łazienkami. Wybierz najlepszy układ dla swojego domu i uczyń go idealnym dla swojej rodziny. Basen społeczności i blisko wszystkich usług.

280.000 €
Ref. AL04
Gran Alacant, Alicante Wyświetl mapę

Podstawowe funkcje

m<sup>2</sup> mieszkania
75 m2 mieszkania
Sypialnie
2 Sypialnie
Łazienki
1 Łazienki
Odległość od morza
Plaża oddalona o 3 km
Basen wspólnotowy
Ogród
Szafy
Podwójne szyby

Opis

Chcesz uzyskać więcej informacji? Mniej informacji
Prezentujemy ci dom w jednej z najlepszych dzielnic Costa Blanca. Bardzo blisko Alicante i lotniska, plaży z niebieską flagą, supermarketów, barów, restauracji i wielu innych rzeczy! Różne możliwości dystrybucji wnętrz dają wiele możliwości zaspokojenia potrzeb różnych i różnych rodzin. Z ładnym wspólnym miejscem, z basenem, parkingiem, własnym wyb...

Lokalizacja

Gran Alacant, Alicante
Czy jesteś zainteresowany tą nieruchomością i chciałbyś uzyskać więcej informacji?

Symulacja kredytu hipotecznego

Pozostała niesfinansowana cena
00,00 €
Przybliżone koszty:
00,00 €
Fundusze własne ogółem
00,00 €
Rata kredytu hipotecznego
€/mes
Chcesz uzyskać więcej informacji?
Jest 48 osób oglądających tę nieruchomość