Mieszkanie na sprzedaż w San Miguel de Salinas (SANM0022-BJ)

Sprzedany

Mieszkanie w San Miguel de Salinas

Ref. SANM0022-BJ
San Miguel de Salinas, Alicante Wyświetl mapę

Podstawowe funkcje

m<sup>2</sup> Grunt
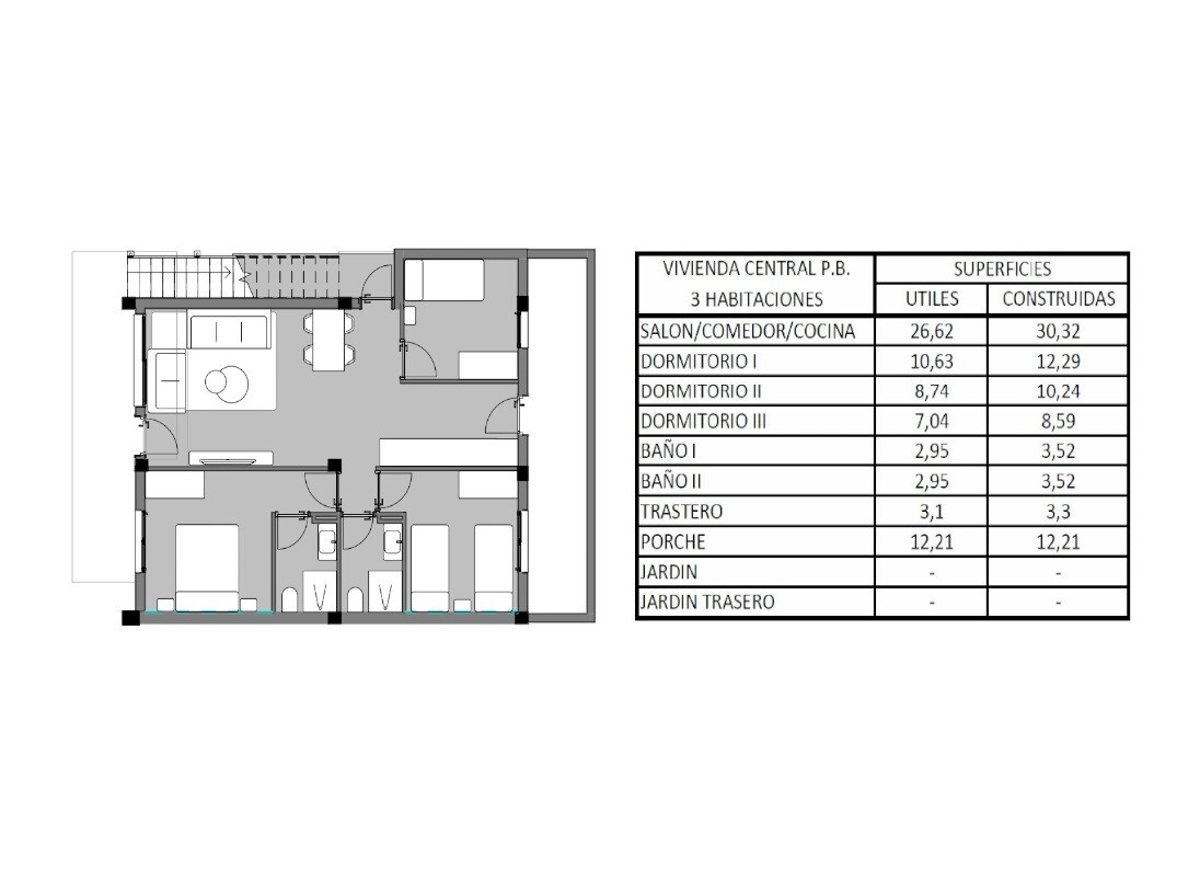
64 m2 Grunt
m<sup>2</sup> mieszkania
82 m2 mieszkania
Sypialnie
3 Sypialnie
Łazienki
2 Łazienki
Odległość od morza
Plaża oddalona o 10 km
Tarasy
13 m² taras
Basen wspólnotowy
Ogród
Szafy
Podwójne szyby

Opis

Chcesz uzyskać więcej informacji? Mniej informacji
Mieszkania na parterze można zaaranżować w układzie 2- lub 3-pokojowym. San Miguel de Salinas zapewnia dobry dostęp do lotniska w Alicante autostradą AP-7. W 10 minut samochodem można wybierać spośród 5 pól golfowych. Do plaży i bulwaru handlowego La Zenia można dotrzeć w około 10 minut. W San Miguel de Salinas znajdziesz wszystkie możliwe udogodni...

Lokalizacja

San Miguel de Salinas, Alicante
Czy jesteś zainteresowany tą nieruchomością i chciałbyś uzyskać więcej informacji?
Chcesz uzyskać więcej informacji?
Jest 1 osób oglądających tę nieruchomość