Położona w jednej z najbardziej ekskluzywnych enklaw mieszkalnych wzdłuż wybrzeża Benissy, w prestiżowej dzielnicy Racó de Galeno, Villa Irati stanowi kwintesencję wyrafinowanego, współczesnego stylu śródziemnomorskiego. Idealnie położona między Morairą a Calpe, nieruchomość cieszy się uprzywilejowaną lokalizacją na wzniesieniu, z widokiem na morze... i naturalny krajobraz północnego wybrzeża Costa Blanca.
Od pierwszego wrażenia willa wyróżnia się elegancką kompozycją architektoniczną, składającą się z czystych, białych brył i przeszkleń od podłogi do sufitu, które płynnie łączą przestrzeń wewnętrzną i zewnętrzną. Główna fasada otwiera się na spektakularny, panoramiczny taras z basenem bez krawędzi, tworząc wizualną płynność między salonem, jadalnią a śródziemnomorskim horyzontem.
Wnętrze zostało starannie zaprojektowane, aby odzwierciedlać zarówno wyrafinowanie, jak i komfort. Naturalne światło wlewa się do otwartej przestrzeni dziennej, gdzie wyrafinowane materiały, stonowane kolory i przemyślane rozplanowanie przestrzeni tworzą spokojną i nowoczesną atmosferę. Główny salon oferuje kilka stref wypoczynkowych i zapewnia bezpośrednie połączenie wizualne z jadalnią i kuchnią, wzmacniając wrażenie otwartości i płynności w całym domu.
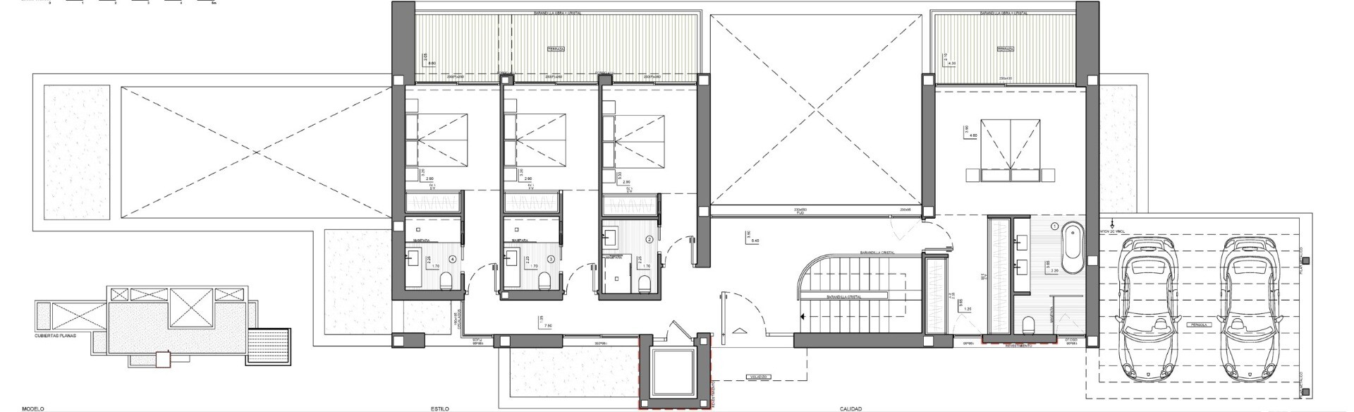
Na piętrze znajduje się strefa nocna, gdzie sypialnie mają bezpośredni dostęp do prywatnych tarasów – idealnych na poranne przebudzenie z niezakłóconym widokiem na morze i kojącymi dźwiękami śródziemnomorskiej atmosfery.
Przestronny dolny poziom oferuje dodatkową elastyczność i może z łatwością pomieścić prywatną siłownię, piwniczkę na wino, salon rozrywkowy lub dodatkowy apartament dla gości, w zależności od potrzeb stylu życia właściciela.
Zewnętrzne ogrody krajobrazowe i kilka zadaszonych tarasów zapewniają całoroczny komfort w klimacie Costa Blanca – idealne miejsce na przyjmowanie gości, wieczorne zachody słońca lub relaks przy basenie bez krawędzi z widokiem na morze.
Dostęp do nieruchomości znajduje się w górnej części działki, gdzie znajduje się eleganckie wejście dla pieszych oraz zadaszony garaż na dwa samochody. Z tego poziomu zarówno zewnętrzne schody, jak i wewnętrzna winda łączą wszystkie piętra willi, zapewniając komfort, dostępność i spójność architektoniczną.
Villa Irati to coś więcej niż rezydencja — to wyjątkowa nieruchomość zaprojektowana z myślą o osobach poszukujących prywatności, doskonałego designu i panoramicznych widoków na Morze Śródziemne w jednej z najbardziej pożądanych lokalizacji na Costa Blanca.